Just 500 metres of the famous Camel Trail on the banks of the Estuary, the tranquility of the location is not to be underestimated. The location is within a short drive of both picturesque Padstow, the bustling market town of Wadebridge and many stunning beaches the North Cornish coast has to offer.
At a Glance
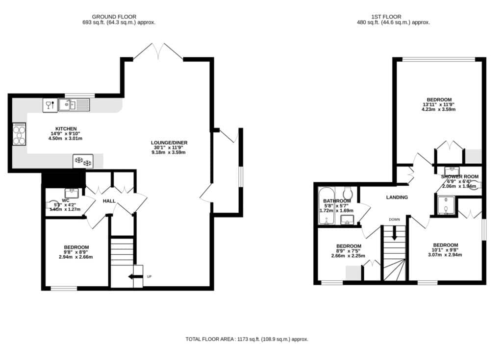
Total Floor Area: 1173sq.ft. (109sq.m approx)
- Handsome Barn Conversion with Modern Twist
- Outstanding Far Reaching Views of the Camel Estuary, Padstow & Rock
- Blissfully Peaceful Area of Outstanding Natural Beauty just 500 Metres from the Famous Camel Trail
- Four Bedrooms with Two Bathrooms
- Extended & Refurbished Accommodation including Underfloor Heating
- Character & Originality Throughout
- Garden, Patio & Parking
- Great Home or Holiday Home with Superb Letting Potential
Refurbished and extended by the current vendors, Hamley Cottage exudes a 200 year history amongst the modern additions, fixtures and fittings. The accommodation is centered around the quite magnificent outlook-and rightly so! The L shaped open plan living space has French doors and windows framing the Camel Estuary in the distance, crossing open countryside along the way, with Padstow on one side and Rock on the other. With a beautiful natural slate floor underfoot together with underfloor heating, there is ample space for sofas, dining table and chairs and occasional furniture.
The contemporary kitchen has a granite work surface and an array of sleek cabinets and drawers together with a rangemaster cooker, breakfast bar, freestanding fridge/freezer, dishwasher and washing machine.
The ground floor has an inviting entrance hall with exposed stone walls, slate floor, slate bench and recessed shelving. There is also an inner hall, deep cupboard, double bedroom and cloakroom.
Up on the first floor is a magnificent double bedroom with full gable end multi pane window, framing perfectly the outstanding far reaching views across the surrounding countryside to the Camel Estuary, Padstow and Rock. The third bedroom is also a genuine double with a high ceiling and built in wardrobe and the fourth bedroom is considered a single room again with built in wardrobe/drawers. There is a modern shower room and separate bathroom with stylish tiling.
Outside is an elevated Cornish stone patio and level lawn beyond, the perfect place from which to take in the outstanding aspect. To the side is a graveled parking area for approximately two vehicles and an external shower.
Services to the property include mains electricity and water, septic tank drainage and an oil fired heating system. EPC rating E. Council tax band unknown. Ofcom suggest ultrafast broadband availability. Ofcom suggest 5G mobile connectivity.
Middle Halwyn is a tiny rural hamlet in the parish of St Issey situated just above the Camel Estuary. The hamlet is situated just under six miles from the historic and picturesque fishing town of Padstow, offering an extensive range of cafes, public houses and restaurants, none more so than Paul Ainsworth's Michelin starred No.6, cool seafood bar Prawn On The Lawn and Rick Stein's esteemed Seafood restaurant. An Area of Outstanding Natural Beauty, there are a number of stunning sandy beaches within five to seven miles as well as the famous championship golf course at Trevose. Padstow also has a supermarket and excellent Primary School. The thriving market town of Wadebridge is just six miles distant and offers a fine selection of shops and amenities including a sports centre, cinema, a primary and secondary school and a selection of supermarkets. The nearest mainline station is Bodmin Parkway which is approximately sixteen miles distant with the nearest airport at Newquay approximately twelve miles away.
To find Hamley Cottage, leave Padstow and follow the A389 for approximately 1.5 miles passing Trevisker Garden Centre along the way. Turn left at the signpost to Wadebridge and follow the A389 through Little Petherick and into St Issey. Drive through St Issey and then turn left signposted to Trevance and Tregonce. Follow the lane for almost a mile before turning right at the next T junction. Take the next left signposted to Camel Trail and Halwyn and follow this lane for approximately 0.5 miles. Hamley Cottage can be found along on the left hand side, part of Middle Halwyn Farm. The postcode for satellite navigation is PL27 7QL. What3words: normal.alike.natural
The contemporary kitchen has a granite work surface and an array of sleek cabinets and drawers together with a rangemaster cooker, breakfast bar, freestanding fridge/freezer, dishwasher and washing machine.
The ground floor has an inviting entrance hall with exposed stone walls, slate floor, slate bench and recessed shelving. There is also an inner hall, deep cupboard, double bedroom and cloakroom.
Up on the first floor is a magnificent double bedroom with full gable end multi pane window, framing perfectly the outstanding far reaching views across the surrounding countryside to the Camel Estuary, Padstow and Rock. The third bedroom is also a genuine double with a high ceiling and built in wardrobe and the fourth bedroom is considered a single room again with built in wardrobe/drawers. There is a modern shower room and separate bathroom with stylish tiling.
Outside is an elevated Cornish stone patio and level lawn beyond, the perfect place from which to take in the outstanding aspect. To the side is a graveled parking area for approximately two vehicles and an external shower.
Services to the property include mains electricity and water, septic tank drainage and an oil fired heating system. EPC rating E. Council tax band unknown. Ofcom suggest ultrafast broadband availability. Ofcom suggest 5G mobile connectivity.
Middle Halwyn is a tiny rural hamlet in the parish of St Issey situated just above the Camel Estuary. The hamlet is situated just under six miles from the historic and picturesque fishing town of Padstow, offering an extensive range of cafes, public houses and restaurants, none more so than Paul Ainsworth's Michelin starred No.6, cool seafood bar Prawn On The Lawn and Rick Stein's esteemed Seafood restaurant. An Area of Outstanding Natural Beauty, there are a number of stunning sandy beaches within five to seven miles as well as the famous championship golf course at Trevose. Padstow also has a supermarket and excellent Primary School. The thriving market town of Wadebridge is just six miles distant and offers a fine selection of shops and amenities including a sports centre, cinema, a primary and secondary school and a selection of supermarkets. The nearest mainline station is Bodmin Parkway which is approximately sixteen miles distant with the nearest airport at Newquay approximately twelve miles away.
To find Hamley Cottage, leave Padstow and follow the A389 for approximately 1.5 miles passing Trevisker Garden Centre along the way. Turn left at the signpost to Wadebridge and follow the A389 through Little Petherick and into St Issey. Drive through St Issey and then turn left signposted to Trevance and Tregonce. Follow the lane for almost a mile before turning right at the next T junction. Take the next left signposted to Camel Trail and Halwyn and follow this lane for approximately 0.5 miles. Hamley Cottage can be found along on the left hand side, part of Middle Halwyn Farm. The postcode for satellite navigation is PL27 7QL. What3words: normal.alike.natural